Im Jahr 2017 startete das Projekt „Haus der Dorfgemeinschaft Mauls“ , mit welchem ein breit angelegtes Sanierungs- bzw. Erweiterungskonzept für das in die Jahre gekommene Vereinshaus in Angriff genommen wurde. Im Rahmen der gestrigen (29. Juli) Gemeinderatssitzung in Freienfeld stellte Arch. Markus Hofer den Gemeinderäten das Projekt vor.
Wie Bürgermeisterin Verena Überegger eingangs erklärte, sei unter Einbeziehung der Vereine eine Bedarfserhebung durchgeführt worden und im Anschluss daran wurde der Raumbedarf ermittelt. Die ursprüngliche Auflage, dass ausschließlich im Rahmen der vorhandenen Grundverfügbarkeit geplant und gebaut werden sollte, habe man recht bald verwerfen müssen, so Überegger. Mit dem Eigentümer des Nachbargrundstückes wurde eine Grundstücksregelung vereinbart, die entsprechende Bauleitplanänderung wurde inzwischen durchgeführt. Das Vorprojekt sei nun bereit zur Abgabe, in einer der kommenden Gemeinderatssitzungen soll darüber abgestimmt werden, kündigte Überegger an.

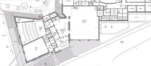
„Durch die Bauleitplanänderung war es möglich, die Raumflächen so zu gestalten, dass alle Wünsche erfüllt werden können und das neue Gebäude allen Anforderungen gerecht wird“, erläuterte
Arch. Markus Hofer. Um Kosten zu sparen, habe man versucht, die bestehenden Räumlichkeiten in ihrer Substanz beizubehalten und nicht gänzlich abzureißen. Die baufälligen Gebäudeteile werde man jedoch auf alle Fälle sanieren. Weiters werden durch die Zubauten weitere Räumlichkeiten geschaffen. Die flächenmäßig größte Erweiterung erfolgt südlich des Gebäudes, wo die Räume für die Feuerwehr und Musikkapelle untergebracht werden. Die Bibliothek wird ebenfalls in den südlichen Zubau integriert und ist zur Landstraße hin ausgerichtet, wo Parkflächen angedacht sind. Im Norden ist die Bühnenerweiterung vorgesehen. Über eine relativ lange Rampe wird das Kerngeschoß erreichbar sein, wo drei Stellplätze, Technikräume, Archiv- und Lagerräume untergebracht werden. Über eine Verbindungstreppe gelangt man zum Obergeschoß, in welchem die verschiedenen Vereinsräume Platz finden. Im bestehenden Teil wurden mehrere Räume umfunktioniert, so wird das ehemalige Probelokal der Musikkapelle künftig dem Chor als Probelokal dienen, die ehemalige Bibliothek wird in einen Mehrzweckraum umfunktioniert, der beispielsweise vom Senioren- oder Jugendverein für Vorträge genutzt werden kann.
Die Bühne wird saniert und um 17 m
2 erweitert, vorgesehen ist ein Lager, in welchem die Bühnenelemente untergebracht werden können. Über einen Außenzugang können schwerfällige Teile auf die Bühne transportiert werden. Im Mehrzwecksaal wie auch im Foyer und Eingangsbereich müssen einige Bodenausbesserungsarbeiten durchgeführt werden. Der Kindergarten wird geringfügig erweitert, die Küche bleibt an gleicher Stelle, erhält aber eine Schiebetür. Das Kindergartenpersonal bekommt ein neues Büro und auf dem Dach des Zubaues, der über eine Rampe erreichbar ist, wird eine Spielwiese für die Kinder errichtet. Neben den internen Sanierungsmaßnahmen werden auch verschiedene Maßnahmen zur Wärmedämmung durchgeführt, so werden u. a. die Fenster ausgetauscht.
Die geschätzten Baukosten für das Projekt belaufen sich auf rund 1,92 Mio. Euro, inklusive aller Nebenkosten wie beispielsweise technische Spesen oder Einrichtung wird mit Kosten in Höhe von 2,88 Mio. Euro gerechnet.